居抜き店舗.comのロゴ

引き継いで、はじまる。 夢を引き継ぎ、自分の夢をプラス。
コストを最小限に抑えた、エコな開業。

居抜物件
募集中!
店舗の閉店・移転を
お考えならぜひ!
大阪の賃貸・売買・事業用物件なら、BRUNO(ブルーノ)不動産

大阪の居抜き店舗専門情報

居抜き店舗.comのロゴ

引き継いで、はじまる。 夢を引き継ぎ、自分の夢をプラス。
コストを最小限に抑えた、エコな開業。

大阪の賃貸・売買・事業用物件なら、BRUNO(ブルーノ)不動産

居抜き店舗物件一覧

の居抜き店舗物件一覧

居抜き物件を新着・更新順に表示しています。

3289件中 1441〜1464件を表示しています。

並び替え:
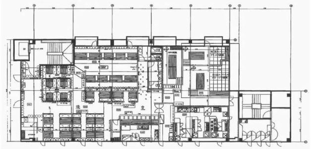
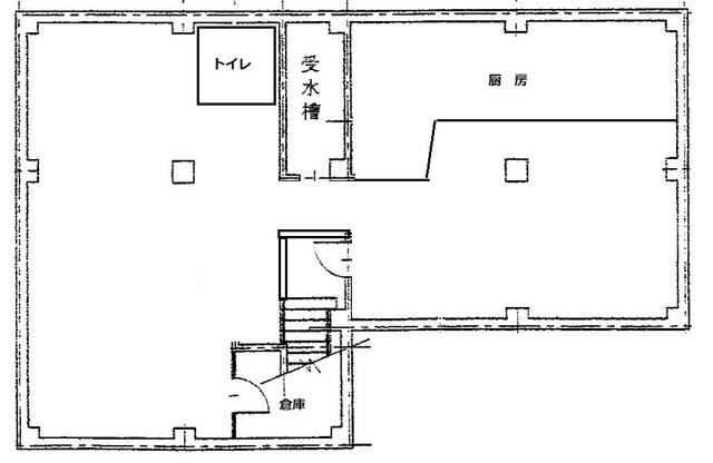
大阪市北区 北新地の居抜き店舗・テナント賃貸の画像
大阪市北区 北新地の居抜き店舗・テナント賃貸の間取り画像
-万円 53(177㎡) 北新地駅 徒歩徒歩

【北新地】高級クラブ居抜き

大阪を代表する飲み屋さん街『 北新地 』より、高級クラブ居抜き物件をご紹介!大型ビルの3階部分広さ約5..
大阪市北区堂島1

物件詳細
大阪市中央区 心斎橋の居抜き店舗・テナント賃貸の画像
大阪市中央区 心斎橋の居抜き店舗・テナント賃貸の間取り画像
-万円 12(-㎡) 心斎橋駅 徒歩徒歩

ミナミのセットサロン

大阪ミナミのセットサロン居抜き物件です。什器・備品付きですのでセットサロン開業にオススメです。ミナミで一花咲かせ..
大阪市中央区心斎橋筋2

物件詳細
大阪市北区 梅田の居抜き店舗・テナント賃貸の画像
大阪市北区 梅田の居抜き店舗・テナント賃貸の間取り画像
-万円 26.67(88.18㎡) 梅田駅 徒歩徒歩

東梅田 人気ラーメン店 居抜店舗!

おまたせいたしました!遂に情報解禁!東梅田のあのビル。大型レストランが入り、昼夜賑わいを見せるあのビル。元人気ラ..
大阪市北区堂山町

物件詳細
大阪市中央区 心斎橋の居抜き店舗・テナント賃貸の画像
大阪市中央区 心斎橋の居抜き店舗・テナント賃貸の間取り画像
-万円 11(-㎡) 心斎橋駅 徒歩徒歩

南船場3丁目の洋食屋さん居抜き

人通りも多く繁華街とオフィス街の両方の顔を持つ南船場3丁目の洋食屋さんの居抜き物件です。御堂筋線心斎橋駅徒歩5分..
大阪市中央区南船場3

物件詳細
大阪市北区 北新地の居抜き店舗・テナント賃貸の画像
大阪市北区 北新地の居抜き店舗・テナント賃貸の間取り画像
-万円 40(132㎡) 北新地駅 徒歩徒歩

四ツ橋筋沿い 堂島2丁目 飲食店舗

大阪市北区堂島2丁目四ツ橋筋沿いの地下1階店舗視認性抜群、業種多数相談可能現在飲食店の居抜き物件ですが業種は幅広..
大阪市北区堂島2

物件詳細
大阪市北区 北新地の居抜き店舗・テナント賃貸の画像
大阪市北区 北新地の居抜き店舗・テナント賃貸の間取り画像
-万円 40(132㎡) 北新地駅 徒歩徒歩

四ツ橋筋沿い 堂島2丁目 路面店舗

大阪市北区堂島2丁目四ツ橋筋沿いの1階路面店舗視認性抜群、業種多数相談可能現在整骨院の居抜き物件ですが業種は幅広..
大阪市北区堂島2

物件詳細
大阪市都島区 都島の居抜き店舗・テナント賃貸の画像
大阪市都島区 都島の居抜き店舗・テナント賃貸の間取り画像
-万円 23(-㎡) 都島駅 徒歩徒歩

1階路面居酒屋居抜き。

都島本通の1階路面居酒屋さん居抜き物件です。居酒屋はもちろんのこと洋食店などにもおすすめ。焼肉・焼鳥はNGとなり..
大阪市都島区都島本通3

物件詳細
大阪市都島区 京橋の居抜き店舗・テナント賃貸の画像
大阪市都島区 京橋の居抜き店舗・テナント賃貸の間取り画像
-万円 16.02(-㎡) 京橋駅 徒歩徒歩

京橋近く国道沿いの美容室居抜き

京橋駅徒歩3分国道1号線に面した1階路面美容室居抜き物件です。現在営業中の店舗ですが引渡し時期はご相談ください。..
大阪市都島区東野田町1

物件詳細
大阪市福島区 福島の居抜き店舗・テナント賃貸の画像
大阪市福島区 福島の居抜き店舗・テナント賃貸の間取り画像
-万円 11.35(-㎡) 福島駅 徒歩徒歩

福島でキャバクラ

福島区では少ないキャバクラOK物件です!!!JR大阪環状線福島駅徒歩3分その他2駅徒歩5分圏内スナック・バー・小..
大阪市福島区福島7

物件詳細
大阪市北区 北新地の居抜き店舗・テナント賃貸の画像
大阪市北区 北新地の居抜き店舗・テナント賃貸の間取り画像
-万円 43(-㎡) 北新地駅 徒歩徒歩

曽根崎新地 北新地駅 飲食店舗

大阪市北区曽根崎新地1丁目四ツ橋筋からもすぐの好立地3階店舗現況スケルトン待望のテナント募集集客力抜群の立地です..
大阪市北区曽根崎新地1

物件詳細
大阪市住吉区 杉本町の居抜き店舗・テナント賃貸の画像
大阪市住吉区 杉本町の居抜き店舗・テナント賃貸の間取り画像
-万円 25(75㎡) 杉本町駅 徒歩徒歩

駅からすぐ!居酒屋居抜き25坪!

JR阪和線杉本町駅徒歩1分駅のホームからの視認性抜群!重飲食可能!各テーブルに上引き排気ダクトあり造作譲渡代18..
大阪市住吉区山之内3

物件詳細
大阪市中央区 北浜の居抜き店舗・テナント賃貸の画像
大阪市中央区 北浜の居抜き店舗・テナント賃貸の間取り画像
-万円 9.6(-㎡) 北浜駅 徒歩徒歩

北浜飲食専門店舗 居抜き店舗

大阪市中央区淡路町1丁目地下鉄【北浜】5分希少北浜エリア飲食店舗今回の募集区画は約9坪賃料218,265円保証金..
大阪市中央区淡路町1

物件詳細
大阪市北区 天神橋筋六丁目の居抜き店舗・テナント賃貸の画像
大阪市北区 天神橋筋六丁目の居抜き店舗・テナント賃貸の間取り画像
-万円 25(-㎡) 天神橋筋六丁目駅 徒歩徒歩

天六の元タイ料理店

天六の元タイ料理店1階路面25坪に物置付きの駅チカおすすめ物件です。厨房スペースも充分にありますので本格的な料理..
大阪市北区天神橋6

物件詳細
大阪市中央区 心斎橋の居抜き店舗・テナント賃貸の画像
大阪市中央区 心斎橋の居抜き店舗・テナント賃貸の間取り画像
-万円 12(39.6㎡) 心斎橋駅 徒歩徒歩

東心斎橋地下1階バー居抜き!12坪

東心斎橋2丁目 地下1階店舗12坪で17万円原状バーの居抜き業種相談で重飲食可能!! 路面から専用階段有保証金1..
大阪市中央区東心斎橋2

物件詳細
大阪市西淀川区 塚本の居抜き店舗・テナント賃貸の画像
大阪市西淀川区 塚本の居抜き店舗・テナント賃貸の間取り画像
-万円 8.18(-㎡) 塚本駅 徒歩徒歩

塚本のスナック居抜き物件

塚本駅すぐのスナック居抜き物件です。住宅街エリアの駅近物件ですので仕事帰りのお父さん達で賑わうアットホームなスナ..
大阪市西淀川区柏里3

物件詳細
 

気になる物件がある場合は 」ボタンを押して、物件をストックする事が可能です!本サイト右端の お気に入りリスト」ボタンよりストックした物件がご確認頂けます!また、物件の一括お問い合せもできますので、大変便利です!ぜひ、ご活用下さい! ※物件が追加されない場合は、お使いのブラウザーのcookieを有効にしてください。

居抜き店舗・事務所のお役立ちコンテンツ

立地の見方店舗探し
立地の見方講座
店舗・テナント選びのポイント失敗しない店舗選び
『探し方のポイント』
店舗開業までのフローチャート店舗開業までの流れを
フローチャートでご案内
貸店舗探し>契約貸し店舗探し
ご契約の流れ
業種別店舗開業ガイド【ネイルサロン】
開業ガイド

関連サイトリンク集

大阪の貸店舗物件情報 || 貸店舗Navi
大阪の賃貸/中古マンション || BRUNO不動産 総合
大阪の貸店舗・テナント Shops STYLE
物件マニア 店舗
大阪市西区の賃貸アパート・マンション・戸建て/中古住宅情報!
住之江の賃貸アパート・マンション・戸建て/中古住宅情報!
Copyright 2021 Inuki-tenpo.com
All Right Reserved.