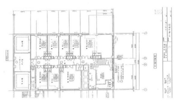
-Ëü±ß
10.89ÄÚ¡Ê36㎡¡Ë
ëĮ»ÍÃúÌÜ±Ø ÅÌÊâÅÌÊâ
Ãæ±û¶èëĮ»ÍÃúÌÜ£±³¬Ï©Ị̀ӣϣȣϣ£ɣǥï¥ó¥ë¡¼¥à¥»¥Ñ¥ì¡¼¥È³ÑÉô²°Ã«»Í¥¨¥ê¥¢Ãϲ¼Å´Ã«Ä®Àþ¡ÖëĮ»ÍÃúÌܡױØÅÌÊ⣴ʬ¥Õ..
Âçºå»ÔÃæ±û¶èÆÁ°æÄ®2
ʪ·ï¾ÜºÙ
-Ëü±ß
35ÄÚ¡Ê117.35㎡¡Ë
»Í¥Ä¶¶±Ø ÅÌÊâÅÌÊâ
À¾¿´ºØ¶¶2ÃúÌÜ4³¬¥ï¥ó¥Õ¥í¥¢35ÄÚBarµïÈ´¤¶È¼ïÁêÃÌÅŵ¤¡¢¿åÆ»¡¢¥¬¥¹°ú¤¹þ̵¤·¥¨¥¢¥³¥ó»ÄÃÖʪ¼¼Æâ¤ºî¤¢¤ê¤¹¤Ù¤Æ..
Âçºå»ÔÃæ±û¶èÀ¾¿´ºØ¶¶2
ʪ·ï¾ÜºÙ
-Ëü±ß
30ÄÚ¡Ê-㎡¡Ë
ÅìÇßÅÄ±Ø ÅÌÊâÅÌÊâ
Âçºå»ÔË̶èÅÆ²æÌîĮëĮÀþ ÅìÇßÅÄ±Ø ÅÌÊ⣵ʬºåµÞ³ÆÀþ ÇßÅÄ±Ø ÅÌÊ⣱£°Ê¬ÏÂÉ÷µï¼ò²°µïÈ´¤Êª·ï1³¬Ï©ÌÌŹÊÞ¤ºî¾ùÅÏ..
Âçºå»ÔË̶èÅÆ²æÌîÄ®
ʪ·ï¾ÜºÙ
-Ëü±ß
10ÄÚ¡Ê-㎡¡Ë
ÃæºêÄ®±Ø ÅÌÊâÅÌÊâ
Ãϲ¼Å´Ã«Ä®ÀþÃæºêÄ®±ØÅÌÊ⤹¤°¡ª¡ª´õ¾¯´°Á´¸Å̱²È¥Æ¥Ê¥ó¥È¸½ºß¡¢´°Á´¤Ë¶ËÈëʪ·ï¡£ÆâÁõ¤Ï¥Ü¥í¥Ü¥í¤Î½»µï¤Ê¤Î¤Ç²þÁõ¤¬É¬Í×..
Âçºå»ÔË̶èÃæºêÀ¾1
ʪ·ï¾ÜºÙ
-Ëü±ß
6.05ÄÚ¡Ê20㎡¡Ë
īĬ¶¶±Ø ÅÌÊâÅÌÊâ
¹Á¶èīĬ¶¶¹ÁÀ²£±³¬Ï©Ì̥С¼µïÈ´¤Å¹ÊÞ¡ÚīĬ¶¶¡ÛÃϲ¼Å´Ãæ±ûÀþ¡ÖīĬ¶¶¡×±ØÅÌÊ⣷ʬÂçºå»ÔÆâ¤ÎÃæ¿´¤òÅìÀ¾¤Ë²£ÃǤ¹¤ë¡ÚÃæ..
Âçºå»Ô¹Á¶è¹ÁÀ²3
ʪ·ï¾ÜºÙ
-Ëü±ß
16.63ÄÚ¡Ê-㎡¡Ë
»Í¥Ä¶¶±Ø ÅÌÊâÅÌÊâ
¥ª¥·¥ã¥ì¥¿¥¦¥ó¡ÚËÙ¹¾¡Û¤«¤é¥«¥Ã¥³¤¤¤¤³°´Ñ¤ÎÏ©ÌÌŹÊÞÊ罸¤¤¤¿¤·¤Þ¤¹¡ª¡ªÁ°Ị̀ƣɣؤΥǥ¶¥¤¥óÀ¤Ï¤É¤ó¤Ê¶È¼ï¤Ë¤â¡ýÆÃ¤Ë..
Âçºå»ÔÀ¾¶èËÌËÙ¹¾1
ʪ·ï¾ÜºÙ
-Ëü±ß
12ÄÚ¡Ê36㎡¡Ë
¿´ºØ¶¶±Ø ÅÌÊâÅÌÊâ
Åì¿´ºØ¶¶±ØÃϲ¼1³¬12ÄÚ²ÈÄÂ17Ëü±ß¡ÊÀÇÊ̡˥С¼µïÈ´¤¢¨½Å°û¿©¡¦É÷¯ÉÔ²ÄÏ©Ì̤è¤êÀìÍѳ¬Ãʤ¢¤êÅì¿´ºØ¶¶2ÃúÌܤªÌä¹ç..
Âçºå»ÔÃæ±û¶èÅì¿´ºØ¶¶2
ʪ·ï¾ÜºÙ
-Ëü±ß
24.6ÄÚ¡Ê-㎡¡Ë
ÌîÅÄ±Ø ÅÌÊâÅÌÊâ
¤Ê¤«¤Ê¤«½Ð¤Ê¤¤ÌîÅÄ¡¦¶ÌÀ¤°¤Î»õ°å¼ÔµïÈ´¤Êª·ï¤Ç¤¹¡£±Ø¶á¤Î»õ°å¼Ô¤µ¤ó¤Ê¤Î¤Ç£²³¬¤Ç¤¢¤ë»ö¤¬¥Ï¥ó¥Ç¤Ë¤Ê¤ê¤Ë¤¯¤¤¤ª¤¹¤¹..
Âçºå»ÔÊ¡Åç¶èµÈÌî2
ʪ·ï¾ÜºÙ
-Ëü±ß
18ÄÚ¡Ê56.08㎡¡Ë
Å·Ëþ¶¶±Ø ÅÌÊâÅÌÊâ
Å·Ëþ¶¶¤Î±Ø¼þÊÕ£±³¬Ï©ÌÌɽʤÏËÜÅö¤Ë¤Ê¤«¤Ê¤«¤ª¼êº¢¤Ê²Á³Ê¤Îʪ¤¬¤¢¤ê¤Þ¤»¤ó¡£¤½¤ÎÃæ¤Çº£²ó¤Ï¤´·ÀÌó夤¤¿¤é¨±Ä¶È½ÐÍè¤ë..
Âçºå»ÔÃæ±û¶èÆâÊ¿ÌîÄ®1
ʪ·ï¾ÜºÙ
-Ëü±ß
20ÄÚ¡Ê66㎡¡Ë
ºæ¶ÚËÜÄ®±Ø ÅÌÊâÅÌÊâ
Âçºå»ÔÃæ±û¶è´¤Ä®1
ʪ·ï¾ÜºÙ
-Ëü±ß
5ÄÚ¡Ê16㎡¡Ë
ÅìÇßÅÄ±Ø ÅÌÊâÅÌÊâ
£±³¬Ï©ÌÌÌó£µÄÚ¼å ¥¬¥é¥¹Ä¥¤êŹÊÞ2³¬13.20Ö3³¬13.20Ö¹ç·×Ìó12ÄڤΰìÅïÂߤ·¤Ç¤¹¡£°ÊÁ°¤Ï¥Í¥¤¥ë²°¤µ¤ó¤Ç..
Âçºå»ÔË̶辮¾¾¸¶Ä®
ʪ·ï¾ÜºÙ
-Ëü±ß
14ÄÚ¡Ê-㎡¡Ë
Íä²°¶¶±Ø ÅÌÊâÅÌÊâ
Âçºå»ÔÃæ±û¶èÊ¿ÌîÄ®3ÃúÌÜÃϲ¼Å´¸æÆ²¶ÚÀþÍä²°¶¶±ØÅÌÊâ5ʬ³«¶È¤Î°Ù¤Î½º´ï¡¦È÷ÉÊ´°È÷¢¨¥³¥ó¥í¡¦¥·¥ó¥¯¡¦µëÅò´ï¡¦À½É¹µ¡¥¨..
Âçºå»ÔÃæ±û¶èÊ¿ÌîÄ®3
ʪ·ï¾ÜºÙ
-Ëü±ß
25ÄÚ¡Ê-㎡¡Ë
Íä²°¶¶±Ø ÅÌÊâÅÌÊâ
Ãϲ¼Å´¸æÆ²¶ÚÀþÍä²°¶¶±ØÅÌÊâ6ʬÂçºå»ÔÃæ±û¶èÊ¿ÌîÄ®4ÃúÌÜĶ¿Íµ¤Î©ÃÏÍä²°¶¶¥¨¥ê¥¢¼÷»Ê²°¤µ¤ó¤ÎµïÈ´¤Êª·ï¤ºî¾ùÅÏÂå¡Ê2..
Âçºå»ÔÃæ±û¶èÊ¿ÌîÄ®4
ʪ·ï¾ÜºÙ
-Ëü±ß
18ÄÚ¡Ê-㎡¡Ë
Æî¿¹Ä®±Ø ÅÌÊâÅÌÊâ
Âçºå»ÔË̶èÀ¾Å·Ëþ5ÃúÌÜ1³¬¡¦2³¬Å¹ÊÞ½Ò¤ÙÌó18ÄÚ´õ¾¯¤ÊÃæ¡¹½Ð¤Ê¤¤¿Íµ¤¥¨¥ê¥¢¤Ç¤¹¡£¸¶¾õµï¼ò²°¤ÎµïÈ´¤Êª·ï¥À¥à¥¦¥§¡¼..
Âçºå»ÔË̶èÀ¾Å·Ëþ5
ʪ·ï¾ÜºÙ
-Ëü±ß
21ÄÚ¡Ê69.42㎡¡Ë
¿´ºØ¶¶±Ø ÅÌÊâÅÌÊâ
Ãæ±û¶èÆîÁ¥¾ì£´¿´ºØ¶¶±Ø¶áŹÊÞ¥¨¥¹¥ÆµïÈ´¤¥ï¥ó¥Õ¥í¥¢ÍÛÅö¤¿¤ê¡ÚÆîÁ¥¾ì£´¡ÛÃϲ¼Å´¸æÆ²¶ÚÀþ¡¦Ä¹ËÙÄḫÎÐÃÏÀþ¡Ö¿´ºØ¶¶¡×±Ø..
Âçºå»ÔÃæ±û¶èÆîÁ¥¾ì4
ʪ·ï¾ÜºÙ
-Ëü±ß
13.9ÄÚ¡Ê45.9㎡¡Ë
¶Ì¤±Ø ÅÌÊâ
Âçºå»ÔÃæ±û¶è¶Ì¤2ÃúÌÜ´×ÀŤʽ»Â𳹤Î1³¬Ï©ÌÌŹÊÞ¤¬Ê罸¤Ë½Ð¤Þ¤·¤¿¡ª¡ª¥«¥Õ¥§µïÈ´¤Ìó13.9ÄÚÄÂÎÁ120,000±ß..
Âçºå»ÔÃæ±û¶è¶Ì¤2
ʪ·ï¾ÜºÙ
-Ëü±ß
10.9ÄÚ¡Ê-㎡¡Ë
ÇßÅÄ±Ø ÅÌÊâÅÌÊâ
Ʋ»³Ä®¤Î±£¤ì²È£Â£Á£Ò¸þ¤Å¹ÊޤǤ¹¡£¤ªÞ¯Íî¤Ë£Ä£É£Ù¤¹¤ì¤Ð¥ª¥·¥ã¥ì´¶È´·²¤ÎŹÊޤ˻ž夬¤ë»ö´Ö°ã¤¤¤Ê¤·¡£¡£¡£±£¤ì²È£Â£Á..
Âçºå»ÔËÌ¶èÆ²»³Ä®
ʪ·ï¾ÜºÙ
-Ëü±ß
18ÄÚ¡Ê-㎡¡Ë
¤Ê¤ó¤Ð±Ø ÅÌÊâÅÌÊâ
Ë¡Á±»û²£ÃúÆþ¤Ã¤Æ¤¹¤°¤ÎŹÊޤΤ´¾Ò²ð¢ö¢£ÄÂÎÁ¢£¥£²£µ£°¡¤£°£°£°-(ÀÇÊÌ)¢£Îé¶â¢£¥£µ£°£°¡¤£°£°£°-..
Âçºå»ÔÃæ±û¶èÆñÇÈ1
ʪ·ï¾ÜºÙ
-Ëü±ß
15.43ÄÚ¡Ê51㎡¡Ë
ËÜÄ®±Ø ÅÌÊâÅÌÊâ
À¾¶è¿ÙËÜÄ®ËÜÄ®¿Ù¸ø±à¥Ñ¡¼¥¯¥µ¥¤¥É³Ñ¥ï¥ó¥Õ¥í¥¢¡Ú¿ÙËÜÄ®£±¡ÛÃϲ¼Å´»Í¤Ä¶¶Àþ¡ÖËÜÄ®¡×±ØÅÌÊ⣴ʬ¿Ù¸ø±à¤ÎÆî¦»Í¥Ä¶¶¶Ú¤«¤é..
Âçºå»ÔÀ¾¶èð×ËÜÄ®1
ʪ·ï¾ÜºÙ
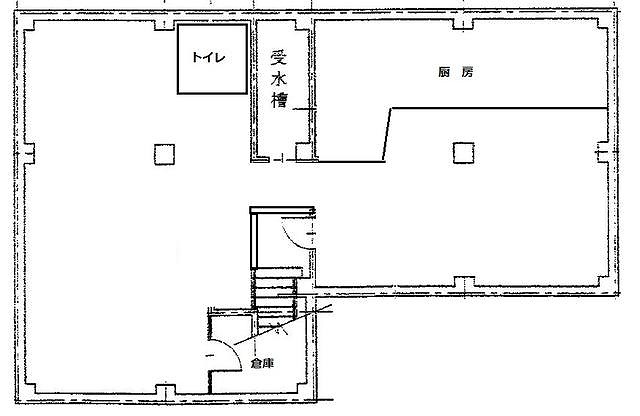
-Ëü±ß
98.37ÄÚ¡Ê325.2㎡¡Ë
¿´ºØ¶¶±Ø ÅÌÊâ
¡ª¡ª¡ª¡ª¡ª¤Ç¤Þ¤·¤¿¡ª¡ª¡ª¡ª¡ª½¡±¦±ÒÌçÄ®Ãϲ¼£±³¬Å¹ÊÞ¥µ¥¦¥Êʤ¢¤È¤Îʪ·ï¤Ç¤¹¡£¢£ÄÂÎÁ¢£¥£±¡¤£´£°£´¡¤£°£°£°-..
Âçºå»ÔÃæ±û¶è½¡±¦±ÒÌçÄ®
ʪ·ï¾ÜºÙ
-Ëü±ß
30ÄÚ¡Ê-㎡¡Ë
ÅìÇßÅÄ±Ø ÅÌÊâÅÌÊâ
Âçºå»ÔË̶èÅÆ²æÌîĮëĮÀþ ÅìÇßÅÄ±Ø ÅÌÊ⣵ʬºåµÞ³ÆÀþ ÇßÅÄ±Ø ÅÌÊ⣱£°Ê¬Ï¿©²°µïÈ´¤Êª·ï1³¬Ï©ÌÌŹÊÞ¤ºî¾ùÅÏÂå¤Ï..
Âçºå»ÔË̶èÅÆ²æÌîÄ®
ʪ·ï¾ÜºÙ
-Ëü±ß
40ÄÚ¡Ê122㎡¡Ë
À¾ÇßÅÄ±Ø ÅÌÊâÅÌÊâ
ƲÅç2ÃúÌÜÀ¾ÇßÅÄ¡¢ËÌ¿·ÃϱØÅÌÊâ3ʬ40ÄÚµï¼ò²°µïÈ´¤Å¹ÊÞÄê´ü¼Ú²È10ǯ´ü´Ö±þÁêÃ̽Űû¿©ÉÔ²ÄÈþÍÆ¼¼ÉԲİû¿©²Ä²ÈÄÂ8..
Âçºå»ÔËÌ¶èÆ²Åç2
ʪ·ï¾ÜºÙ
-Ëü±ß
20ÄÚ¡Ê-㎡¡Ë
ËÌÉ걯 ÅÌÊâ
Âçºå»ÔÃæ±û¶èÊ¿ÌîÄ®1ÃúÌÜ¡¢¥ª¥Õ¥£¥¹³¹¡ÚËÌÉÍ¥¨¥ê¥¢¡Û¤Î1³¬Ï©ÌÌŹÊÞ¤¬Ê罸¤Ë½Ð¤Þ¤·¤¿¡ª¸òº¹ÅÀ¤Î³ÑÃϤǻëǧÀÈ´·²¢ö¥é¥ó..
Âçºå»ÔÃæ±û¶èÊ¿ÌîÄ®1
ʪ·ï¾ÜºÙ
-Ëü±ß
19ÄÚ¡Ê-㎡¡Ë
ÅìÇßÅÄ±Ø ÅÌÊâÅÌÊâ
Âçºå»ÔË̶è Á¾º¬ºê2ÃúÌܥޥ嵡¼¥¸Å¹ÊÞµïÈ´¤Å¹ÊÞ ¢¨É÷¯´Ø·¸ÉԲĥӥëÁ°¤Ç¤ÎµÒ°ú¤¤âÉԲĤǤ¹¡£Ä®²ñÈñ3,..
Âçºå»ÔË̶èÁ¾º¬ºê2
ʪ·ï¾ÜºÙ
µ¤¤Ë¤Ê¤ëʪ·ï¤¬¤¢¤ë¾ì¹ç¤Ï ¡Ö¡×¥Ü¥¿¥ó¤ò²¡¤·¤Æ¡¢Êª·ï¤ò¥¹¥È¥Ã¥¯¤¹¤ë»ö¤¬²Äǽ¤Ç¤¹¡ªËÜ¥µ¥¤¥È±¦Ã¼¤Î¡Ö ¤ªµ¤¤ËÆþ¤ê¥ê¥¹¥È¡×¥Ü¥¿¥ó¤è¤ê¥¹¥È¥Ã¥¯¤·¤¿Êª·ï¤¬¤´³Îǧ失¤Þ¤¹¡ª¤Þ¤¿¡¢Êª·ï¤Î°ì³ç¤ªÌ䤤¹ç¤»¤â¤Ç¤¤Þ¤¹¤Î¤Ç¡¢ÂçÊÑÊØÍø¤Ç¤¹¡ª¤¼¤Ò¡¢¤´³èÍѲ¼¤µ¤¤¡ª
¢¨Êª·ï¤¬Äɲ䵤ì¤Ê¤¤¾ì¹ç¤Ï¡¢¤ª»È¤¤¤Î¥Ö¥é¥¦¥¶¡¼¤Îcookie¤ò͸ú¤Ë¤·¤Æ¤¯¤À¤µ¤¤¡£