̧ÌÌ»ÔÌò½ê¤½¤Ð¤ÎµïÈ´¤Å¹ÊÞ
Åê¹ÆÆü¡§
¡ÚÂߏÊß¡Û
ÊÔ½¸¥¹¥¿¥Ã¥Õ¡§³Þ²¬

ºåµÞ̧ÌÌÀþ¡ÚËÒÍî±Ø¡ÛÅÌÊâ7ʬ ̧ÌÌ»ÔÌò½ê¤«¤éÅÌÊâ2ʬ¤ÎΩÃÏ Ãæ±ûÀþ¤ËÌ̤·¤¿¿ÍÄ̤ꡢ¼ÖÄ̤ê¤â¿¤¤Î©ÃÏ

̧ÌÌ»ÔÌò½êÁ°¤«¤éÀ¾¤Ë¤¹¤°¤ÎΩÃϤǤ¹¡£

2³¬¤ÎŹÊޤǤ¹¤¬Ä̤꤫¤é¤Î»ëǧÀ¤âÎɹ¥¤Ç¤¹¡£

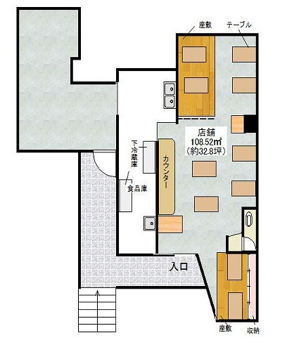
108.52Ö¡¡¸µ¾ÆÆùŹÊÞ¡¢µïÈ´¤Êª·ï¡Ê»ÄÃÖʪ¤¢¤ê¡Ë
̧ÌÌ»ÔÌò½ê¤½¤Ð¤ÎΩÃÏ¡¢
´Ñ¸÷µÒ¥á¥¤¥ó¤è¤êÃϰèÌ©Ãå¤Î
¤ªÅ¹¤¬¹ç¤¤¤½¤¦¤ÊΩÃϤǤ¹¡£
¤ªÌ䤤¹ç¤ï¤»¤ªÂÔ¤Á¤·¤Æ¤ª¤ê¤Þ¤¹¡£
| ʪ·ï¾ðÊó | |
|---|---|
![]() |
|
| ¹¤µ¡¦Ê¿ÊÆ | 32.8ÄÚ¡¡ÀìÍÌÌÀÑ¡§108.52 ㎡ |
| ½êºßÃÏ | Âçºå̧ÌÌ»ÔÀ¾¾®Ï©4ÃúÌÜ |
| ¥¢¥¯¥»¥¹ | ºåµÞ̧ÌÌÀþ ËÒÍî±Ø ÅÌÊâ7ʬ |
| ʪ·ï¼ïÊÌ¡¦µ¬ÌÏ | ÂߏÊß¡¡Ãϲ¼1³¬ÃϾå5³¬·ú |
| Ê罸¾õ¶· | |
| ¤ªÌ䤤¹ç¤» µ»öÈÖ¹æ | 15382 |
¢¨Êª·ï¾ðÊó¤Ï¾ï¤ËήÄ̤·¤Æ¤¤¤ë¤¿¤á¡¢¤ªÌä¹ç¤»¤Î¥¿¥¤¥ß¥ó¥°¤Ë¤è¤Ã¤Æ¤ÏÊ罸¾õ¶·¤¬°Û¤Ê¤ë¾ì¹ç¤¬¤´¤¶¤¤¤Þ¤¹¡£

ŹÊÞõ¤·
¼ºÇÔ¤·¤Ê¤¤Å¹ÊÞÁª¤Ó
ŹÊÞ³«¶È¤Þ¤Ç¤Îή¤ì¤ò
Âߤ·Å¹ÊÞõ¤·
¡Ú¥Í¥¤¥ë¥µ¥í¥ó¡Û





